casa gião

localização vila do conde - portugal

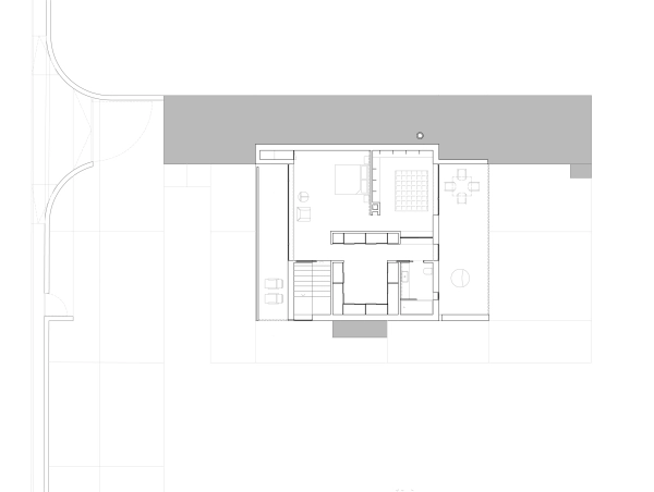
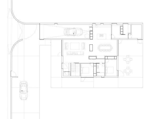
Esta moradia foi esboçada a partir do sonho da cliente de ter uma casa só para ela. Desta feita, para melhor usufruir do seu recanto, colocou como condição que o piso superior fosse exclusivamente para seu uso, ficando o nível térreo destinado às áreas públicas da casa, tais como a sala de estar, de jantar e cozinha, além dos dois quartos para eventuais visitas. No piso 1, desenvolvem-se, portanto, as zonas privadas do quarto principal com uma dimensão generosa, bem como um espaço de closet e um canto de leitura. O espaço sobrante do piso é aproveitado em parte para varandas que fazem a continuação dos espaços para o exterior.

A casa dá primazia às orientações nascente e poente, visto serem bem expostas à luz solar e pela forte capacidade de imersão na paisagem, sendo que à sua frente existe uma vinha extensa e para trás um arvoredo impermeável

Uma vez que a moradia já se destaca por si mesma no que respeita à modernidade do traço, optou-se por atenuar esse contraste através de tonalidades de acabamento exterior que vão de encontro à envolvente, com um cinza claro transitório entre a moradia à direita deixada em bloco de cimento cru e outra moradia mais tradicional caiada de branco à esquerda. As telas screen com um tom bordeux são igualmente usadas com o intuito de encontrar correspondência com os telhados vizinhos e de diluir-se sazonalmente nos valores outonais da paisagem em volta.

No que respeita à volumetria do conjunto, visa-se aqui, igualmente, a harmonização com a envolvente pelo cruzamento dos alinhamentos existentes em dois volumes com distanciamentos distintos face à estrada, sendo que o alinhamento predominante é o mais próximo do enquadramento legal vigente.

>