casa lixa

localização felgueiras - portugal

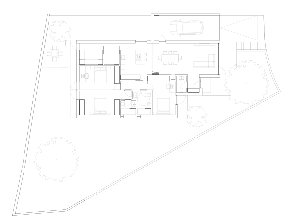
Inserida num loteamento, esta casa na Lixa, concelho de Felgueiras, teve como requisito inicial ser uma casa térrea, o que por si só se revelou um desafio pois, além de obrigar à alteração prévia do loteamento, estávamos em face de um terreno algo exíguo e irregular para a tipologia de T3 pretendida, junto de casas vizinhas em dois pisos conforme loteamento, a somar a um desnível de 3 metros do terreno desde a face da rua até a um muro alto em pedra a tardoz.

Desta feita, tentou-se encontrar a melhor cota para implantar o volume, no intuito de minimizar todas as adversidades acima referidas. A pedido da cliente, foi também pensado o conjunto de modo a que a parte pública da casa vazasse a todo a profundidade o espaço, desde um pequeno logradouro atrás, mais privado, com acesso pela lavandaria, até à frente da sala orientada para a frente de rua. Todo o corpo dos quartos tornou-se então uma espécie de entidade paralela por onde se acede através de uma porta na sala que, por sua vez, deriva num corredor que distribui por uma suíte e por outros dois quartos que partilham uma casa de banho acessível.

Pelo exterior, as coberturas inclinadas vão por seu turno dar uma ajuda nesta alusão de uma maior altura da casa e aportar outro ênfase ao espaço interior, hierarquizando-o e em certa parte divertindo-o, numa tentativa de maior abstração em relação aos compartimentos um tanto oblongos, fruto das condicionantes descritas.

>