casa real

localização braga - portugal

Situado num loteamento em Real, Braga, este lote desde logo revelou dificuldade na integração com os desejos do cliente dada a antiguidade do loteamento e suas condicionantes: 3 pisos definidos por cave, R/C e piso superior, distribuídos em 100m2 por piso, e cobertura em telhado de 2,3 ou 4 águas. Foi então necessário proceder a uma alteração de loteamento para melhor redistribuir a área, muito embora se mantendo a contingência de deixar o telhado presente tal como nas pré-existências com a mesma tipologia de habitação isolada.

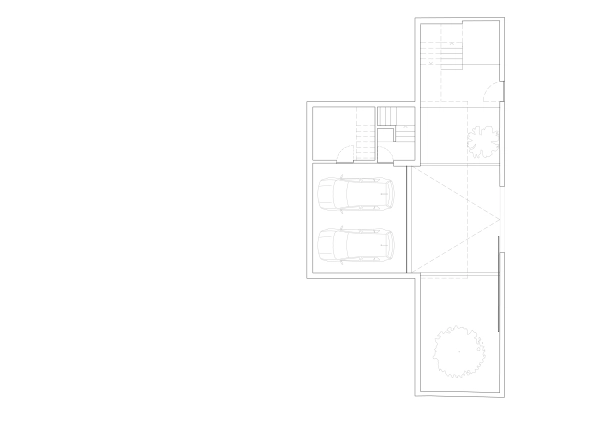
Assim, cria-se um corpo em balanço no piso principal, como parte da estratégia de não se exceder a área possível de implantação, trazendo também uma maior leveza ao conjunto que, caso contrário, tornar-se-ia um rígido bloco. No piso de cave, de menor dimensão, cabem então dois lugares de garagem e um espaço de arrumos.

A questão da privacidade na fachada orientada para a rua da Quinta dos Lagos foi resolvida através de um sistema de 3 faixas opacas idênticas intercaladas com os vãos que funcionam como varandas e ainda de platibanda a esconder o telhado em pirâmide, sendo que a distância entre bandas no piso principal é menor, dando assim uma maior privacidade à zona da sala, mais exposta. No piso intermédio, para além da sala, temos uma cozinha aberta para a sala de jantar e ainda um wc de serviço e um escritório no prolongamento da entrada. Já a parte privada dos quartos encontra-se implantada no piso superior servida por três quartos e uma suíte.

>