casa torreira

colaboração ana faustino
localização torreira - portugal

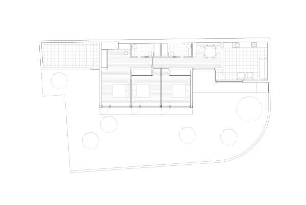
Existia uma casa térrea projetada a todo o comprimento e muito estreita, que em muito se assemelhava aos vagões de um comboio, e que se estendia desde o ponto de entrada até ao limite do terreno na longitudina l. A casa, além de não se relevar inspiradora quanto às espacialidades e integração com a envolvente próxima, também apresentava um mau estado de conservação. Assim, resolveu-se reutilizar os panos de parede exterior tanto quanto possível para uma maior economização de meios, e reinventá-la a fim de proporcionar espaços interiores mais acolhedores, bem como hierarquizar / harmonizar a volumetria.

Aproveitou-se a diferença de altimetrias com a fachada vizinha para extrudir o oblongo volume neste ponto e destiná-lo ao espaço público da casa, com sala de estar e kitchenette. Segue-se um espaço de transição que funciona como copa e que dá continuidade para a área mais privada dos quartos, constituída por uma suíte e dois quartos servidos por uma casa de banho comum, de serviço.

Em termos visuais, criou-se uma frente corrida de vidro que se emiscui na volumetria branca e opaca e que perfaz na totalidade as frentes dos quartos com vista para o jardim, a par com dois janelões entre a sala e a copa e de uma porta envidraçada que dá acesso a um espaço reaproveitado para arrumos.

>