description description description
espaço de ensino extracurricular
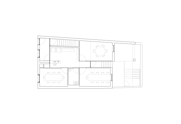
localização: fafe - portugal

A adaptação de um andar térreo de uma casa de dois pisos para o funcionamento de um espaço de ensino extra curricular é o mote deste projeto. No seguinte caso, todas a divisórias interiores foram demolidas (não constituindo perigo para a estabilidade do edificado) o que permitiu uma maior flexibilidade na organização dos espaços que se averiguou exigente do ponto de vista do cumprimento das áreas mínimas de utilização versus o quociente do nº de alunos visados.

Embora sendo uma adaptação de uma casa antiga, o regulamento das acessibilidades exigiu que, sendo considerado um espaço de utilização pública, este fosse integralmente cumprido, ao que se juntou mais um certame a esta causa. Surge, assim, no decorrer do processo, um espaço de ante-câmara dentro das medidas regulamentares e um WC adaptado.

Foi também fechada umas das portas de acesso ao R/C e mantida a segunda porta como entrada única de distribuição. Os restantes vãos foram rasgados até à cota da rua, de modo a permitir uma melhor iluminação natural dos espaços, além de conferir um caráter mais jovem/ apelativo à fachada.