habitação coletiva estoril

colaboração Arq. Pedro Mezia Lopes
localização estoril - portugal

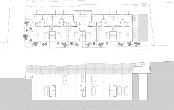
Numa zona tranquila do Estoril, a S00m da Praia da Poça, nasce um projeto destinado a acolher 12 apartamentos, 8 T2 e 4 T1, em regime de condomínio privado com piscina comum. Além da proximidade às praias, o terreno localiza-se no eixo da linha de cascais, com bons acessos à capital

Com a disposição das frentes principais a nascente/poente, aproveitou-se essa qualidade para criar varandas na extensão da sala de estar e jantar a poente e dos quartos a nascente. Estes últimos, por exigirem maior resguardo visual, estão dotados de uma pala vertical que os protege do tráfego da rua Manuel Ribeiro dos Santos.

A tardoz, o corpo em balanço abriga um parqueamento em semi cave, com acessos verticais feitos através de 3 caixas de escada exteriores que ligam com as frações do piso superior.

Toda a serralharia está pensada à cor amarela, servindo como apontamento harmónico com as casas envolventes, de matriz mais clássica.

>