reabilitação nogueira

localização maia - portugal

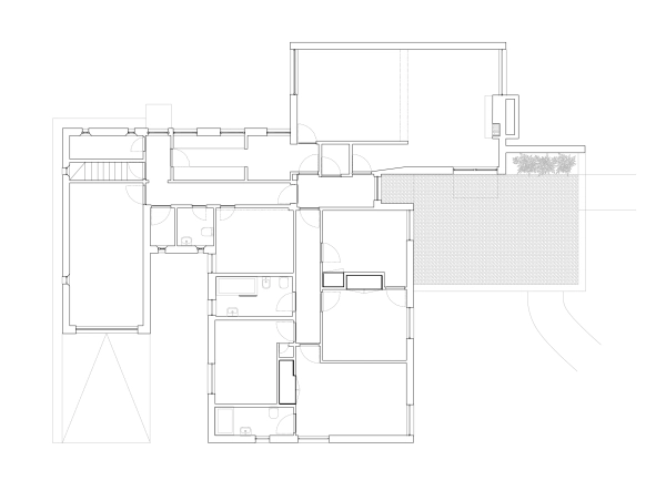
The restoration of this house was a huge privilege to ARQ|EMA, because it is a former project by the illustrious and so acclaimed architect Luís Carlos Loureiro. This house in Maia, with an internal organization in line with to its past construction date - with a sewing room, isolated wardrobes, etc. - had, for obvious reasons, to adapt itself to modern times and new resulting uses.

In this sense, smaller divisions were transformed into gathered and larger spaces once the corridor that gave access to such reduced compartments around the kitchen was removed. The kitchen has then expanded and has now direct connection with the laundry and the storage room, as well as with the old garage that will now give access to a garden shelter. The larger rooms were thus all oriented towards the central corridor that takes us to the volume parallel to the street. The only suite is installed at the bottom of it and the remaining three bedrooms share an accessible bathroom. The living and dining room also suffered a considerable impact in terms of its dialogue with the entrance hall, hitherto done by a mere door and now reinforced by a void of about two free meters.

On the whole, I believe that the space has been improved, responding to the demands of contemporaneity within this exceptional house.

>