reabilitação ribeira de pena

colaboração Arq. João Vilela
localização salvador, ribeira de pena - portugal

O projeto reconhece uma atitude de contextualização arquitetónica que explora e se relaciona com a preexistência, a investiga e nela procura indícios para a recuperar, intervir, alterar e melhorar. O passado é um promotor do futuro, e o processo da intervenção começou pela intuição que a ruína e o lugar nos impunham.

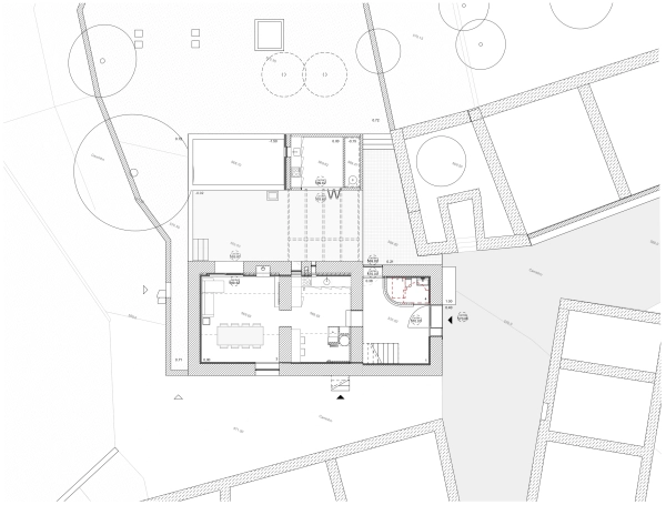
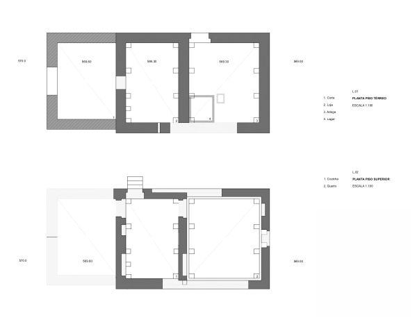
Atualmente, não existe qualquer piso de pavimento ou cobertura. A matéria existente só se poderá reduzir apenas à fachada porque é o que se herda, o que fica e o que permanece. Será necessário dotar a casa de estruturas necessárias ao regular funcionamento, designadamente no que concerne às questões decorrentes de conforto arquitetónico contemporâneo. Para tal, numa nova organização funcional, propõe-se recolocar a escada no sítio original, através do rebaixamento cirúrgico na zona da escada na área de distribuição, porque o cachorro estrutural junto à porta, também este se encontra mais baixo. Assim conseguimos ampliar a zona dos quartos e ganhar altura sem mexer no perfil muito bonito da cobertura original. A escada está encostada à parede sul e une os dois pisos.

No piso térreo desenvolve-se, no seguimento da escada e por esta ordem: o hall, no lugar do original anexo, com instalação sanitária e acesso por escada ao piso superior (esta divisão tem ainda duas possíveis saídas para o exterior, uma para o quintal e outra para a rua); o espaço intermédio para cozinha, zona de confecção, preparação de alimentos, e despensa; e por fim a sala de estar, com lareira, conectando directamente com o espaço exterior a norte.

A natureza da intervenção permite atualizar a casa para uma sequência natural dos espaços, com a criação de uma nova abertura na parede entre as duas salas do piso térreo, entre os dois cachorros centrais, desenhando um eixo de circulação central.

No piso superior, o contato com o exterior é possível apenas do lado sul, através das escadas exteriores de acesso à porta principal. Deste modo repartiu-se este espaço em três quartos e uma casa de banho. Todos os espaços servidos por luz natural.

Construtivamente a casa é constituída reintegrando a maior quantidade de matéria existente, deixando percecionar a existência de alvenarias originais e novas alvenarias, completando cada vão mais ou menos desmoronados, repondo a alvenaria de granito em falha que abateram da estrutura original. A recuperação baseia-se na colocação de lã de rocha, na face interior da parede, rematada por placa de gesso cartonado. Pelo interior, na “derme” destes elementos, as paredes serão as únicas preventivamente revestidas por placas de gesso cartonado associadas a uma camada de isolamento térmico em lã mineral de 6 cm, mantendo as reentrâncias já existentes, que servirão de estantes para arrumo de livros e outros objetos. As paredes dos vãos interior da casa que não estejam em contacto direto com o exterior apresentarão a textura do aparelho de granito existente. Na compartimentação do sanitário em baixo, propõe-se uma hera de interior a cobrir o pano redondo que desenha o movimento entre os dois vãos exteriores.

As caixilharias serão em alumínio com vidro duplo. Ao longo do processo de projeto hesitou-se sobre a localização da caixilharia, tendo sido colocada ao centro da parte da parede exterior como eram feitas originalmente, solução encontrada em construções da época, para criar sombra da abertura. Procura-se agora introduzir portas envidraçadas enquadradas pelo desenho base da caixilharia. É a janela que convém destacar e valorizar. Há o diálogo da pessoa com a casa e com a paisagem que lhe é próxima. A única parte opaca será o vão fixo da porta principal da casa, que pelo interior servirá de apoio para deixar casacos. Essa transparência será interrompida a qualquer momento com o recurso ao sistema de portadas interiores em madeira. Pretende-se que funcionem, quando pretendido, para proporcionar privacidade e obscurecimento do interior. Em todos os vãos, o sistema de portadas será composto de quatro folhas de batente, em que cada uma se recolhe de forma idêntica para a espessura das ombreiras de cantaria de granito.

Ligado à casa por uma pérgola, um novo anexo vira-se para um pátio com o mesmo comprimento da construção inicial de 10 metros de comprimento e 7 metros de largura, com pavimento impermeabilizado em betão, à cota do piso térreo, com o desnível de um degrau que também se manifesta pelo interior entre o hall e o novo espaço de cozinha. Também a escada do acesso principal da casa, na frente a sul, teve de ser substituída por acusar o desgaste do passar dos anos e do uso, e completa esta linguagem do betão.

No quinteiro, a uma cota ligeiramente superior, temos a base do espigueiro, elemento arquitetónico marcante, no seu local original, e um lagar transladado da casa. A vegetação envolverá a área restante transmitindo um sentido de infinitude na paisagem. No quintal a proposta é manter todas as árvores possíveis de recuperar, como a oliveira, as carvalhas e os citrinos como a tangerineira e a laranjeira e a plantação de mais árvores de fruto e uma tília, por causa do seu aroma e a pedido da cliente.

>