remodelação escritórios banco invest

colaboração Pedro Lima / Catarina Moreira
localização boavista, porto- portugal

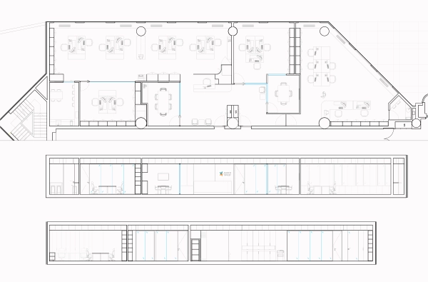
Os escritórios do Banco Invest, localizados no Edifício Península, no Porto, devido à antiguidade das suas instalações, foram alvo de uma profunda intervenção com o objetivo de transformar o espaço num ambiente mais moderno, funcional e acolhedor. Acrescentou-se ainda o desafio de integrar o novo departamento Private, dedicado ao atendimento de clientes com patrimónios mais avultados. Para as duas salas de reunião previstas no projeto, optou-se pela utilização de divisórias envidraçadas de elevado desempenho acústico, garantindo a necessária privacidade sem perder transparência e luminosidade.

A intervenção preservou as linhas orientadoras da imagem corporativa do banco, já presentes noutros escritórios mais recentes. Assim, privilegia-se o tom branco nas paredes e em diversos elementos de mobiliário, combinando-se com apontamentos de alumínio e vidro. Pequenos, mas intencionais toques de azul — cor do logótipo — surgem pontualmente, reforçando em uníssono a identidade da marca e sublinhando o rigor e a sobriedade que a caracterizam.

A sala principal ganhou uma nova amplitude através do rebaixamento dos móveis separadores entre as mesas, o que permitiu criar um ambiente mais dinâmico, fluido e colaborativo. Neste espaço reorganizado, integra-se uma sala técnica recentralizada e uma copa ampliada, agora dotada de melhores condições de uso, onde o azul ganha maior protagonismo e confere energia renovada aos momentos de pausa e convívio. Já o balcão de receção, ligeiramente recuado, assumiu o papel de ponto charneira entre as duas alas, estabelecendo uma ligação direta às salas de reunião que, em conjunto com o departamento Private, transformam os dois halls anteriormente independentes num único espaço transparente e integrado.

Por fim, também o mobiliário foi criteriosamente selecionado, não só para responder a todos os requisitos técnicos e funcionais, mas também para consolidar a imagem sólida, rigorosa e contemporânea que o Banco Invest pretende afirmar com a conjugação harmoniosa de todos os elementos introduzidos nesta renovação.

>